Gewerbehaus Bahnhofstrasse Wald
Eine neue Perspektive für das Zentrum von Wald:
Wiederbelebung eines architektonischen Juwels
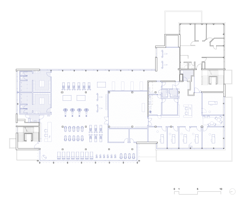
Durch die Umgestaltung von Obergeschoss, Fassaden und Innenräumen entsteht Platz für neue Nutzungen wie Physiotherapie und Fitness.
Ähnliche Projekte
Gewerbehaus Bahnhofstrasse Wald
Die kleine Ortschaft Wald liegt rund eine Stunde von Zürich entfernt im Zürcher Oberland auf einer Lichtung im Wald, wie der Name schon sagt. Trotz dieser peripheren Lage verfügt die Gemeinde über einen Bahnhof und damit über eine Bahnhofstrasse.
Direkt an dieser Achse, zwischen kleinformatigen Bauten der Jahrhundertwende, entstand 1974 ein ambitioniertes architektonisches „Experiment“. Es handelt sich um einen Waschbetonbau zwischen Postmoderne und Brutalismus, geprägt von Bandfenstern und schlanken Sichtbetonstützen. Obwohl er sich dramatisch von seiner Nachbarschaft abhebt, wirkt das Gebäude durch seine zentrale Lage, die öffentlichen Nutzungen sowie seine filigrane Klarheit zentrumsbildend.
Der ursprünglich über zwei Geschosse geplante Supermarkt war bereits im Erstellungsjahr zu gross dimensioniert, so dass das Obergeschoss mit seinen schmalen Bandfenstern und den großen Raumtiefen bald verwaiste. Im Rahmen der Sanierung werden die schmalen Bandfenster durch grossformatige Öffnungen zur Strasse und zum grünen Hinterhof ersetzt. Die maroden Waschbetonelemente weichen fein auf die Umgebung abgestimmten Kunststeinelementen. Im Inneren wird die Gebäudetechnik modernisiert und es entsteht Platz für eine Physiotherapie sowie ein Fitnesscenter.
Die Baubewilligung wurde im Dezember 2025 erteilt. Der Baustart ist für den Sommer 2026 vorgesehen.
- Typologie:
- Bürobau
- Aufgabe:
- Sanierung, Umbau
- SIA-Phasen:
- 31–53
- Akquise:
- Direktauftrag
- Status:
- In Bau
- Ort:
- Wald (CH)
- Jahr:
- 2026
- Gebäudevolumen:
- 2'620 m3
- Baukosten:
- 2'300'000 CHF
- Auftraggebende:
- Profond Anlagestiftung
- Planerteam:
- ReBo Partner (Baumanager)
HTB Ingenieure (Bauingenieurwesen)
Limmat Gebäudetechnik (HLKS-Planung)
HKG Engineering (Elektroplanung)
Steigmeier Akustik + Bauphysik (Bauphysik)
BCW-Brandschutz Consulting (Brandschutzplanung) - Mitarbeitende:
- Hannes Reichel
Nando Reichard
Wanling Xu
Pascale Schmid