2026

Baubewilligung für Mehrfamilienhaus Albisstrasse 161 rechtskräftig Projekt

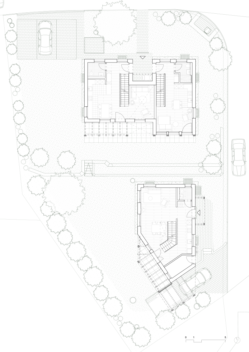
Unser Mehrfamilienhaus an der Albisstrasse 161 hat im März die Baubewilligung erhalten, die inzwischen rechtskräftig ist. Wir freuen uns, mit diesem Projekt einen neuen Auftakt für den Süden der Stadt Zürich zu schaffen und 25 hochwertige Eigentumswohnungen zu realisieren.

Mehrfamilienhaus Albisstrasse 161
Willkommen im Team, Admira! Team

Admira Hoti unterstützt uns neu als Projektleiterin. Nach ihrem Masterabschluss an der Hochschule Biberach sammelte sie mehrere Jahre Erfahrung in verschiedenen Schweizer Architekturbüros, wo sie Projekte unterschiedlichster Grössenordnungen plante und leitete.

Zum Team
Willkommen im Team, Ria! Team

Ria Alrutz ist Architektin MSc. Nach ihrem Bachelorstudium an der TU Braunschweig und ersten Praxiserfahrungen in der Schweiz absolvierte sie ihren Master an der ZHAW in Winterthur.

Zum Team
Vernissage «Dialoge zur Verdichtung» Veranstaltung

Hannes Reichel hat einen Gastbeitrag im Buch «Zurich Primer: Eine konzeptionelle Planungsvision für die Stadt» verfasst. Darin setzt er sich mit Themen rund um die Verdichtung von Stadt- und Wohnraum in Zürich auseinander. Der Book Launch findet im Rahmen der Vernissage «Dialoge zur Verdichtung» im ZAZ Bellerive statt.

Zur Veranstaltung
Unternehmensberatung St. Gallen kurz vor Abschluss Projekt

Unser Interior-Design-Projekt im Herzen von St. Gallen steht kurz vor dem Abschluss. Die letzten Schreiner- und Malerarbeiten werden derzeit ausgeführt und von uns als Generalplaner und Baumanager überwacht. Dem Bezug im März steht somit nichts mehr im Wege!

Unternehmensberatung St. Gallen
Baufortschritt an der Felsenhofstrasse Projekt

Nach dem Baustart unseres Projekts in Adliswil im Herbst geht es im neuen Jahr zügig weiter mit dem Betonieren der Erdgeschossdecke. Die beiden Gebäude, die als Massivbauten mit Holzdachstuhl realisiert werden, sind im Sommer bezugsbereit.

Wohnhaus Felsenhofstrasse
Historischer Umbau im Kreis 3 Projekt

Im Zürcher Kreis 3, nahe dem Goldbrunnenplatz, bauen wir ein Hofgebäude in der Quartiererhaltungszone umfassend um. Die historische Bausubstanz, die über fast 100 Jahre hinweg mehrfach transformiert wurde, gleicht einem Flickenteppich unterschiedlichster Konstruktionen: Eisen- und Stampfbeton-Hourdisdecken wechseln sich mit Holzbalkendecken ab, Mauerwerk verschiedener Epochen trifft auf Fachwerk und unarmierten Beton. Neben denkmalpflegerischen Anforderungen stehen insbesondere statische, akustische und brandschutztechnische Themen im Fokus unserer Arbeit.

Umbau und Redesign Villa Zürichberg Projekt

Wir wurden beauftragt, eine herrschaftliche Villa am oberen Zürichberg umfassend zu sanieren und neu zu gestalten. Neben dem Redesign der Innenräume wird das Gebäude technisch, statisch und akustisch vollständig erneuert. Unter anderem werden die Holzbalkendecken durch Stahlbetondecken ersetzt, Heiz- und Kühlstrahler ergänzt sowie eine Erdwärmepumpe installiert.

Baubewilligung für Gewerbehaus Bahnhofstrasse Wald rechtskräftig Projekt

Die Baubewilligung für unser Sanierungsprojekt an der Bahnhofstrasse in Wald ZH ist rechtskräftig. Nun werden wir dieses «architektonische Experiment» im Herzen von Wald umfassend sanieren und dem Gebäude ein neues, offeneres Gesicht zur Stadt verleihen.

Gewerbehaus Bahnhofstrasse Wald

2025

Baubewilligung in Zürich-Unterstrass rechtskräftig Projekt

Die Baubewilligung für die Transformation eines Gewerbehauses in Zürich Unterstrass zu Wohnraum ist rechtskräftig.

Neues Projekt in Zürich-Wollishofen Projekt

Wir freuen uns über ein neues Wohnbauprojekt in Zürich-Wollishofen. Die Albisstrasse bildet hier eine wichtige Stadteinfahrt, an der die urbane Struktur in das Umland übergeht. Unser Projektgrundstück liegt an der Stadtgrenze, direkt neben dem denkmalgeschützten Seewasserwerk Moos, in einem stark durch Lärm und Infrastruktur geprägten Kontext. Auf dieser Grundlage entsteht ein U-förmiger Neubau mit 25 gehobenen Eigentumswohnungen, der den Lärmschutz durch eine sorgfältige Grundrissorganisation und gezielt gesetzte Pufferzonen gewährleistet.

Mehrfamilienhaus Albisstrasse 161
Baufreigabe für das Mehrfamilienhaus Weltistrasse Projekt

Unser Mehrfamilienhaus an der Ecke Waffenplatz- und Weltistrasse hat die Baufreigabe erhalten und wird voraussichtlich Anfang 2027 bezugsbereit sein. Im Zürcher Quartier Enge entsteht ein Neubau in einem historisch vielschichtigen Kontext zwischen Villen und Wohnbauten des frühen 20. Jahrhunderts. Der Bau interpretiert den Zürcher Jugendstil in zeitgemässer Formensprache und entwickelt mit Travertin, Beton und Naturstein sowie einer differenzierten Wohnstruktur von Mietwohnungen bis zur Attikawohnung einen eigenständigen Baukörper im Dialog mit seiner Umgebung.

Mehrfamilienhaus Weltistrasse
Baufreigabe für das Wohnhaus Felsenhofstrasse Projekt

Unser Projekt für ein Ein- und ein Zweiparteienhaus in Adliswil hat die Baufreigabe erhalten. Die Rodungsarbeiten haben bereits begonnen. In einem ruhigen Wohnquartier entsteht ein Doppelprojekt für zwei Schwestern, ihre Mutter und deren Familien mit gemeinsamem Aussenraum. Die anspruchsvolle Parzellengeometrie und ein Geländesprung von über zwei Metern führten zu einer präzisen, im Design-to-Cost-Verfahren optimierten Planung für insgesamt neun Bewohner.

Wohnhaus Felsenhofstrasse
Interior Design für internationale Unternehmensberatung fertiggestellt Projekt

Für eine internationale Unternehmensberatung durften wir im Zürcher Kreis 4 den Innenausbau als Generalplaner und Architekten gestalten und umsetzen. Die Büroflächen wurden vollständig neu organisiert und zu einer modernen Arbeitsumgebung mit unterschiedlichen atmosphärischen Zonen entwickelt. Das Zusammenspiel von hellen und dunklen Materialien, sichtbar geführter Haustechnik im industriellen Stil sowie akustisch wirksamen Elementen schafft eine funktionale und identitätsstiftende Innenarchitektur.

Unternehmensberatung Zürich
Umbau ZKJ Rötelstrasse abgeschlossen Projekt

Nach kurzer Bauzeit konnten wir als Generalplaner, Architekten und Baumanager den Umbau an die Nutzer übergeben. Für die Stiftung Zürcher Kinder- und Jugendheime ZKJ wurde im ehemaligen Jugendheim Erika in Zürich-Wipkingen ein neuer Empfangs- und Sitzungsbereich realisiert. Der denkmalgeschützte, 1959 von Werner Frey entworfene Pavillonkomplex wurde behutsam weiterentwickelt und um eine reversible Holzkonstruktion im Eingangsbereich ergänzt. Die Umsetzung erfolgte in enger Abstimmung mit Denkmalpflege und Behörden und stellte insbesondere aufgrund der Integration im Fluchtweg sowie des Bauens unter laufendem Betrieb besondere Anforderungen.

Umbau ZKJ Rötelstrasse
Seminarwoche in Buenos Aires Lehre

Gemeinsam mit der Professur von Alexandre Theriot unterrichtet Hannes Reichel das Semester «(in)consistency, borderline(s) investigation» in Buenos Aires. In Zusammenarbeit mit Studierenden von Prof. Marcelo Faiden an der Universidad Torcuato Di Tella werden Entwicklungsansätze für einen vernachlässigten Stadtteil entlang des Riachuelo-Flusses untersucht.

2024

Redesign Hygienecenter Hauptbahnhof Zürich abgeschlossen Projekt

Der von uns neu gestaltete Hygienecenter im Zürcher Hauptbahnhof ist eröffnet. Im Rahmen des SBB-Redesigns haben wir das Projekt als Generalplaner gemeinsam mit unserem Fachplanerteam umgesetzt. Am meistfrequentierten Bahnhof der Schweiz entstand ein hochfunktionaler Raum, der Sicherheit, Aufenthaltsqualität und das neue Erscheinungsbild vereint. Während der Bauphase stellte ein Provisorium in der Haupthalle den unterbruchfreien Betrieb sicher.

Hygienecenter Hauptbahnhof Zürich
Mehrfamilienhaus Manzelnweg erhält Baubewilligung Projekt

Unser Mehrfamilienhaus mit 14 Wohnungen in Tägerig AG hat die Baubewilligung erhalten. Der Neubau an der südlichen Dorfkante interpretiert die ortstypische Biedermeier-Architektur und reagiert auf den starken Geländesprung mit einem Splitlevel-Konzept. Die 14 Eigentumswohnungen sind um ein zentrales Treppenhaus mit Lift organisiert und werden durch Holzakzente und plastisch ausgebildete Balkone ergänzt.

Mehrfamilienhaus Manzelnweg
FYRMA Podcast mit Hannes Reichel Publikation

In dieser Episode des «FYRMA Podcasts für Architektinnen mit Ambitionen» spricht Yves Reichenbach mit Hannes Reichel. Er berichtet über seinen Weg vom HTML-Programmierer zum Architekten sowie über frühe Misserfolge in Wettbewerben. Weitere Themen sind seine Lehrtätigkeit an der ETH Zürich, die Bedeutung von Bürogrösse und Standortstrategie sowie der Einfluss von Netzwerkeffekten auf die Auftragslage.

Zum Podcast
Wettbewerbsbeitrag Pfarrhaus Steinlig Wettbewerb

Beim offenen Projektwettbewerb für ein neues Pfarrhaus der reformierten Kirchgemeinde Bassersdorf ZH erreichte unser Beitrag «Pfaffenstück» die Endrunde. Im Quartier Steinlig greift der Entwurf die kleinteilige, historisch gewachsene Bebauung auf und entwickelt daraus eine fein gegliederte, versetzte Volumetrie. Pfarrwohnung, Pfarrbüro und Wohnen erhalten eine klare Adresse mit differenzierten Eingängen und terrassierten Aussenräumen.

Pfarrhaus Steinlig
2. Preis Wettbewerb Wettbewerb

Im Gesamtleistungswettbewerb für die Erweiterung der Primarschule Birrhard konnten wir den 2. Preis erzielen.

2023

Drei Projekte zur Baueingabe eingereicht Projekt

Wir freuen uns, zum Jahreswechsel drei neue Projekte in die Baueingabe gebracht zu haben: ein Mehrfamilienhaus in Tägerig AG sowie je ein Projekt in Zürich-Wollishofen und Zürich-Enge. Insgesamt entstehen dabei 50 Wohnungen.

«JA» zum Recyclingzentrum Adliswil Projekt

Nach dem Stadtrat hat nun auch der Grosse Gemeinderat von Adliswil dem Neubau des Recyclingzentrums «in der Tüfi» an der Sihl zugestimmt. Die Projektierung startet im Januar 2024. Der bestehende Entsorgungspark stösst an Spitzentagen an seine Kapazitätsgrenzen und bietet keine Entwicklungsmöglichkeiten am heutigen Standort. Auf einer nahegelegenen Parzelle entsteht daher ein neues, kompaktes Recyclingzentrum als Holzbau mit optimierter Verkehrsführung und einem begrünten Dach, das die künftigen Anforderungen der Region abdeckt.

Entsorgungspark Tüfi
Kindergarten Werd Adliswil in «FIRST» publiziert Publikation

Unser Doppelkindergarten Werd in Adliswil wurde in der Fachzeitschrift «FIRST» publiziert.

Geschäftsstelle ABZ fertiggestellt Projekt

Für die ABZ (Allgemeine Baugenossenschaft Zürich) realisierten wir als Architekten und Generalplaner einen neuen Aussenposten ihrer Geschäftsstelle im Hochhaus Hoch3 in Zürich-Wiedikon. Die Sanierung des Hauptsitzes an der Gertrudstrasse folgt. Die Büroerweiterung als Open Space bietet flexible Arbeitsplätze, Besprechungsräume und Silent Boxes und wird über hybride Deckensegel technisch und akustisch optimiert.
Entstanden ist eine wertige, zurückhaltende Arbeitsumgebung, die Funktionalität und Wohlbefinden verbindet.

Erweiterung Geschäftsstelle ABZ
Gastvorlesung an der ETH Lehre

Hannes Reichel wurde eingeladen, im Rahmen der Entwurfsklasse «The Economy of the Project, Forms of Living» am Lehrstuhl Christian Kerez / Academic Guest Studio Fondamenta an der ETH Zürich eine Gastvorlesung zum Thema «Die Ökonomie der Stadt – versteckte Kräfte und Architektur» zu halten.

Grossauftrag für die SBB Projekt

Nach der gemeinsamen Entwicklung mehrerer Pilotprojekte mit den Schweizerischen Bundesbahnen (SBB) freuen wir uns, das neue Design in den kommenden drei Jahren als Generalplaner an zahlreichen Standorten in der Deutschschweiz und im Tessin umzusetzen. Die Bandbreite reicht dabei vom Modul-WC an Regionalbahnhöfen bis zum Zürcher Hauptbahnhof.

Kundenbereiche SBB

2022

3-Parteienhaus in Adliswil fertiggestellt Projekt

Unser dreiteiliges Holzwohnhaus in Adliswil am Hang ist fertiggestellt. Auf dem steilen Grundstück entstanden zwei Mehrfamilienhäuser mit insgesamt drei Wohnungen und gemeinsamer Tiefgarage. Die vorvergrauten Holzbauten auf Sichtbetonsockel werden durch Kupferdetails akzentuiert und setzen das Konzept des konsequenten «Wohnens im Holz» mit vorgefertigter Konstruktion und Photovoltaikdächern um.

Mehrfamilienhaus Leimbachstrasse
Betriebsgebäude in Hedingen fertiggestellt Projekt

Das neue Produktionsgebäude der Dr. W. Kolb AG in Hedingen ZH ist fertiggestellt und an die Bauherrschaft übergeben worden. Als Generalplaner und Architekten durften wir das GMP- und SwissPharma-konforme Projekt für die KLK Group von der Planung bis zur Realisierung begleiten. Die Anlage umfasst Prozess-Reaktoren sowie Bereiche für Weiterverarbeitung, Abfüllung und Analyse und wurde im laufenden Betrieb umgesetzt. Die komplexe Planung erfolgte als BIM-Projekt (LOD 400+) und integrierte Architektur, Gebäudetechnik, Bauphysik, Brandschutz sowie die Koordination der Anlagentechnik.

4. Preis Wettbewerb Wettbewerb

Im Gesamtleistungswettbewerb für einen 5-fach Kindergarten mit Hort in Küttingen AG erreichen wir den 4. Preis. Der schlanke Holzbau ordnet sich entlang der Parzellengrenze der Schulanlage Stock an und schafft Raum für die künftige Arealentwicklung. Die zweigeschossige Struktur bietet flexibel nutzbare, gut belichtete Räume und wird durch einen durchlaufenden Balkon ergänzt, der Erschliessung und Aussenraum verbindet.

Kindergarten Küttingen
Podiumsdiskussion im Zürcher Architekturzentrum Veranstaltung

Im Zürcher Architekturzentrum Bellerive diskutiert Hannes Reichel im Rahmen einer Podiumsdiskussion über die Chancen des gebauten Bestands am Beispiel der Siedlung Bergacker unter dem Leitgedanken «Die Zukunft beginnt im Bestand». Am 7. November geben Expert:innen aus Architektur, Stadtplanung, Politik und Klimaschutz ihre Einschätzungen zur Weiterentwicklung bestehender Siedlungen. Nach kurzen Statements von Ivo Balmer, Rahel Gessler, Katrin Gügler, Hannes Reichel und Jakob Schneider eröffnet die Moderation von Sabine v. Fischer die Diskussion. Im Zentrum steht die Frage: Wie geht es weiter – im Bergacker und darüber hinaus?

Beitragsbild: Philip Kaiser, Rémi Jourdan, ETH Zürich

3. Preis Wettbewerb Wettbewerb

Im beschränkten Wettbewerb für das Redesign der Raiffeisenbank-Filiale Muotathal erreichen wir den 3. Preis. Das Raumkonzept erhält die bestehende «Wertezone» und interpretiert die Filiale als offene, helle Kundenlandschaft zwischen Fassade und Wintergarten neu. Peripher angeordnete Arbeitsplätze sowie mobile Trennwände und integrierte Besprechungsräume ermöglichen flexible Nutzungen bei hoher Aufenthalts- und Akustikqualität.

Raiffeisenbank Muotathal
1. Preis Wettbewerb Wettbewerb

Wir freuen uns über den 1. Preis im offenen Projektwettbewerb für den Neubau der WSL in Birmensdorf und den Start der weiteren Planung mit unserem Fachplanerteam. Die WSL (Eidgenössische Forschungsanstalt für Wald, Schnee und Landschaft) ist Teil des ETH-Bereichs und forscht zu naturnahen und urbanen Lebensräumen. Der Ersatzneubau ergänzt den bestehenden Campus, fügt sich in die orthogonale Struktur ein und schafft einen begrünten Innenhof. Flexible Büro- und Laborflächen ermöglichen eine langfristig anpassungsfähige Nutzung.

Forschungsgebäude WSL
Gesamtsanierung Mehrfamilienhaus Hallwilerweg fertiggestellt Projekt

Die Gesamtsanierung von zwei Mehrfamilienhäusern in der Luzerner Innenstadt mit insgesamt 39 Wohnungen ist abgeschlossen. Die 1951 erbauten Gebäude wurden in enger Abstimmung mit der Denkmalpflege umfassend erneuert – inklusive Haustechnik, Fenstern, Küchen und Bädern sowie Balkonen, Treppenhäusern und Oberflächen. Ziel war die Verbindung von zeitgemässem Wohnkomfort mit dem Erhalt des historischen Erscheinungsbilds.

Mehrfamilienhaus Hallwilerweg

2021

Doppelkindergarten Werd Adliswil fertiggestellt Projekt

Unser Doppelkindergarten Werd in Adliswil ist fertiggestellt und bezugsbereit nach den Sommerferien. Der Minergie-Eco-zertifizierte Holzbau entstand aus einem Wettbewerb von 2018 in enger Zusammenarbeit mit Bauherrschaft und Fachplanern. Der Neubau besteht aus zwei Volumen, die auf die Bestandsstruktur reagieren und die Eingänge räumlich fassen. Die Garderoben sind beidseitig erschlossen, die Holzfassade mit Recyclingbetonsockel schützt die Konstruktion und entwickelt eine natürliche Alterung.

Kindergarten Werd Adliswil
Baustart zweier Mehrfamilienhäuser in Adliswil Projekt

Baustart an der Leimbachstrasse 16 und Gstalderstrasse 1 in Adliswil: Die Rodungs- und Abbrucharbeiten für unsere beiden Holzbauprojekte haben begonnen.

Baustart Neubau Produktionsgebäude in Hedingen Projekt

Der Spatenstich für das Produktionsgebäude der Dr. W. Kolb AG in Hedingen ZH ist erfolgt. Nach abgeschlossener Planung als Generalplaner gemeinsam mit unserem Fachplanerteam und den anlagenseitigen Spezialisten sowie erteilter Baubewilligung beginnen nun die Bauarbeiten und Anlageninstallationen. Wir freuen uns gemeinsam mit der Bauherrschaft über diesen wichtigen Meilenstein.

2020

Ausgewählt für grossen Schulhauswettbewerb in Hannover Wettbewerb

Wir freuen uns, für den Wettbewerb zum Neubau der Aussenstelle der Wilhelm-Raabe-Schule mit Sporthalle und Kita in Hannover ausgewählt worden zu sein. Auf rund 5’500 qm entstehen neue Schulräume, eine Dreifachsporthalle sowie eine Kindertagesstätte.

Neue Vorlesung: Bauprozess Ökonomie FS20 Lehre

Im Frühjahrssemester 2020 startet erneut das Vertiefungsfach «Bauprozess: Ökonomie» bei Dozent Hannes Reichel. Das Fach untersucht die Schnittstelle zwischen Ökonomie und gebautem Raum und zeigt, wie wirtschaftliche und gesellschaftliche Rahmenbedingungen Stadt und Architektur vom städtebaulichen Massstab bis zum einzelnen Gebäude prägen. Anhand internationaler Beispiele und Rückführungen auf Zürich werden diese Mechanismen vergleichend analysiert. Im Zentrum stehen praxisnahe Themen wie Kosten, Rendite, Risiken und Potenziale, die in Fallstudien und Übungen aus der Perspektive verschiedener Projektbeteiligter behandelt werden. Die Studierenden arbeiten dabei aktiv an Fallbeispielen und individuellen Themen im Rahmen von Wahlfacharbeiten mit.

Umzug ins neue Büro Büro

Wir konnten in letzter Zeit zahlreiche spannende Projekte gewinnen und benötigen daher grössere Räumlichkeiten. Fündig geworden sind wir direkt an der Birmensdorferstrasse zwischen dem Bahnhof Wiedikon und der Schmiede Wiedikon, in einem der dynamischsten Quartiere Zürichs. Neu finden Sie uns am Talacker 50 in Zürich.

2019

Artikel in werk, bauen + wohnen Publikation

Hannes Reichel hat gemeinsam mit Prof. Sacha Menz (ETH Zürich) in der aktuellen Ausgabe der Architekturzeitschrift werk, bauen + wohnen einen Artikel zum Umgang mit Baukosten in der Schweiz veröffentlicht. Im Fokus steht ein neues Tool des CRB, das mehr Transparenz in der Kostenplanung schaffen und diese stärker zugänglich machen soll. Am 15. Januar 2020 diskutiert er das Thema zusammen mit Tibor Joanelly (wbw) an der Swissbau, der grössten Schweizer Baumesse.

Baufreigabe für Privarbank in Zürich Projekt

Unser Redesign für eine Privatbank in Zürich hat die Baufreigabe erhalten, die Bauarbeiten laufen bereits. Die Filiale modernisiert ihre Client Meeting Rooms, die Lobby sowie sämtliche technischen und sicherheitsrelevanten Anlagen, um den veränderten Kundenbedürfnissen gerecht zu werden. Ziel ist eine standortspezifische Gestaltungssprache, die internationale Corporate-Design-Vorgaben mit einer klaren Schweizer Identität verbindet.

Privatbank Zürich
Podiumsdiskussion an der Swissbau 2020 Veranstaltung

Hannes Reichel diskutiert am 15. Januar 2020 an der Swissbau in Basel zusammen mit Tibor Joanelly (werk, bauen + wohnen), Romain Lerch und Robert Larocca vom Bundesamt für Statistik. Die Runde wird von György Orbán (CRB) moderiert und findet im Kontext der Einführung einer neuen Baukosten-Datenbank statt. Im Zentrum steht die Rolle des Architekten als Hüter der Baukultur, die stets über reine Kostenkennwerte hinausgedacht werden muss.

Mehr Informationen zur Veranstaltung
ETH Seminarwoche FS20 Lehre

Fünf Tage – fünf Zürcher Büros erzählen: Während einer Woche besuchen wir täglich ein Zürcher Architekturbüro und erhalten Einblicke in ein breites Spektrum an Werdegängen, Arbeitsweisen und Projekten. Die Auswahl reicht von jungen Büros mit frühen Erfolgen über etablierte Akteure der Architekturszene bis hin zu spezialisierten Büros mit klarer Nischenstrategie. Im Zentrum stehen neben den gebauten Projekten auch Themen wie Bürogründung, Organisation, Finanzierung, Akquise sowie Kosten-, Lohn- und Gewinnstrukturen. So werden die Wechselwirkungen zwischen Bürostrategie und architektonischer Praxis direkt vor Ort nachvollziehbar.

Mehr Informationen
Vortrag an der Beschaffungskonferenz Bern Vortrag

Hannes Reichel spricht an der Beschaffungskonferenz des Bundes an der Universität Bern gemeinsam mit Alain Frapolli (Liip AG) über agile Projektentwicklung. Im Zentrum steht die gemeinsam entwickelte Immobilienökonomie-Applikation der ETH Zürich als Beispiel.

Detailplanung Interior Design beauftragt Projekt

Wir wurden mit der Detailplanung des Innenausbaus für eine grosse internationale Wirtschaftsberatung beauftragt und setzen die visuellen Vorgaben des Design Architects in konkrete Planungen um, die wir mit weiteren Fachplanern koordinieren. Insgesamt werden rund 13’000 qm für über 2’000 Mitarbeitende gestaltet.

Sanierung von zwei Mehrfamilienhäusern in Luzern beauftragt Projekt

Wir sind mit der Sanierung von zwei Mehrfamilienhäusern in der Luzerner Innenstadt beauftragt, die 1951 von Architekt Wolfgang Nägeli aus Zürich mit insgesamt 31 Wohnungen erstellt wurden. Nägeli wurde neben seiner umfangreichen Bautätigkeit insbesondere durch seine bauökonomischen Studien bekannt und gilt als Begründer der Immobilienökonomie in der Schweiz sowie als Entwickler der bis heute verwendeten Lageklassenmethode zur Bestimmung des Verhältnisses von Land- zu Anlagekosten.

2018

1. Preis Wettbewerb Kindergarten Werd Adliswil Wettbewerb

Unser Beitrag für den geladenen Wettbewerb «Doppelkindergarten Werd, Adliswil» hat den 1. Preis gewonnen. Gemeinsam mit Rosenmayr Landschaftsarchitekten freuen wir uns auf den Start der weiteren Bearbeitung.

Kindergarten Werd Adliswil
Auftrag für Detailplanung im Innenausbau erhalten Projekt

Wir wurden mit der Ausführungs- und Detailplanung für den Innenausbau einer grossen Schweizer Bank beauftragt. Auf einer Nutzfläche von rund 7’700 qm werden Open Spaces, Kommunikationszonen, Coffee Corners, Sitzungszimmer sowie eine grosszügige Cafeteria mit Gastroküche realisiert. Das Investitionsvolumen beträgt über 20 Millionen Schweizer Franken.