Die Primarschulanlage in Schwyz bildet gemeinsam mit der Pfarrkirche St. Antonius, dem Rothenthurm und Tor sowie dem Pfarr- und Gemeindehaus einen städtebaulich prägnanten Raum, der die Identität von Rothenthurm prägt. Alle öffentlichen Bauwerke sind eigenständig und stehen in Sichtbeziehung zueinander, sodass eine Ergänzung sensibel eingefügt werden muss, ohne das bestehende Konzept zu stören.
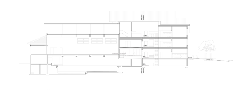
Die Anlage ist durch einen höher gelegenen Hof und ringförmig angeordnete Schul- und Sportbauten geprägt, erschlossen über eine grosszügige Freitreppe mit Vordachzone. Die Erweiterung wahrt den Abstand zur Schulstrasse, verdeckt das bestehende Schulhaus nicht und respektiert die Eigenständigkeit des Gemeindehauses. Sie fügt sich ressourcenschonend über den bestehenden Kindergartenanbau an die Sporthalle an und schafft eine attraktive neue Südfassade.