Kindergarten Küttingen

Regional nachhaltig:
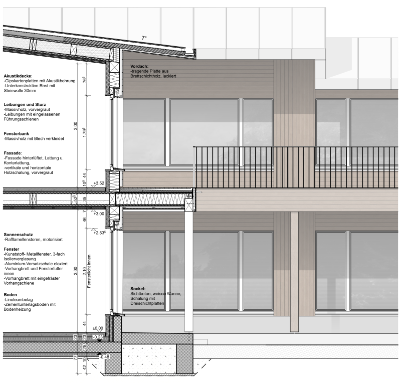
Ein Holzbau, der Kindergarten und Hort geschickt zusammenführt.

Der schlanke Holzbau fügt sich entlang der westlichen Parzellengrenze ein und schafft Raum für die künftige Entwicklung der Schulanlage Stock.

Ein durchlaufender Balkon verbindet informell Kindergarten und Hort, bietet gedeckte Aussenbereiche und schafft zugleich einen geschützten Erschliessungsweg.