Wohnhaus Felsenhofstrasse
Zwei Familien, drei Generationen:
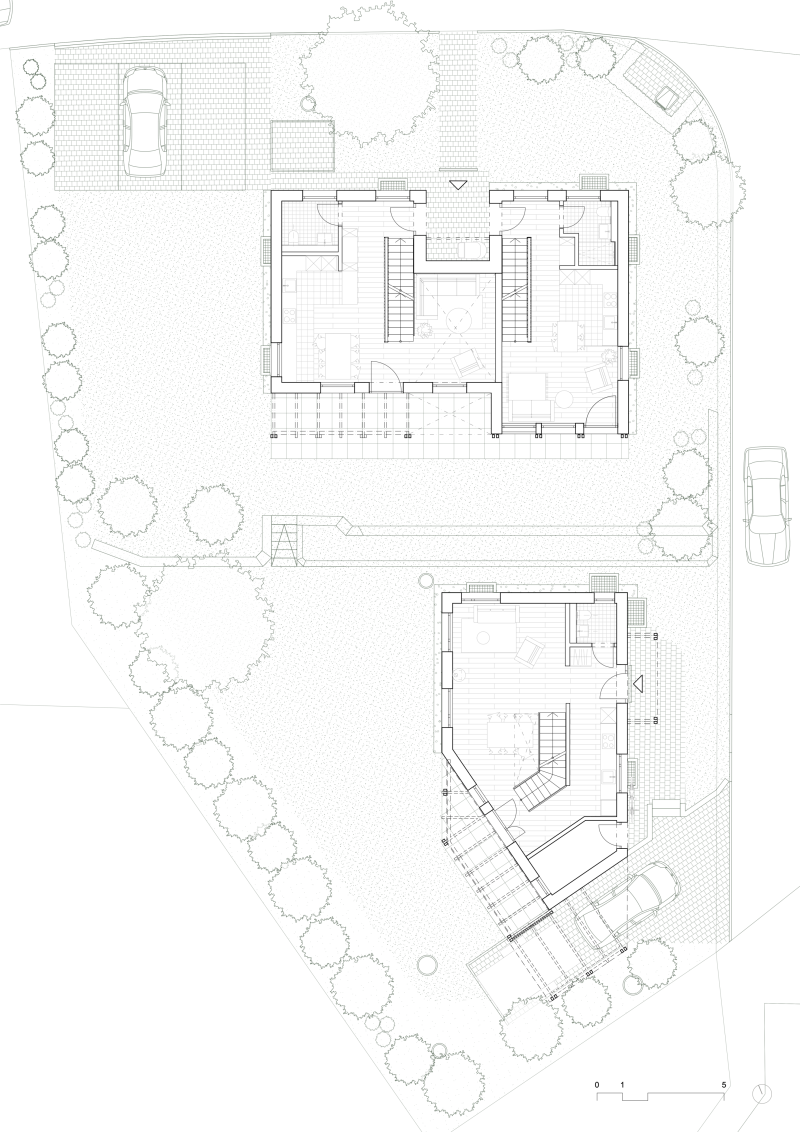
Unter zwei Dächern vereint an einem Ort
Haus Süd als abgeschrägter Solitär und Haus Nord als Abschluss zur Strasse werden durch Holz-Pergolas und filigrane Geländer räumlich verbunden und harmonisch gegliedert.
Ähnliche Projekte
Wohnhaus Felsenhofstrasse
In einem ruhigen Wohnquartier von Adliswil realisieren wir ein Doppelprojekt für zwei Schwestern, ihre Mutter und Familien: ein Einfamilienhaus und ein Zweifamilienhaus mit gemeinsam nutzbarem Aussenraum. Unterschiedliche Wohnvorstellungen, die anspruchsvolle Parzellenform und ein Gefälle von über zwei Metern stellten besondere Herausforderungen an Planung und Umsetzung. Im Design-to-Cost-Verfahren optimiert, bieten die Massivbauten Platz für neun Personen. Haus Süd erscheint als abgeschrägter Solitär, Haus Nord schliesst die Parzelle zur Felsenhofstrasse hin ab. Die kühl-grauen Volumina werden durch warme Holz-Pergolas und filigrane Geländer ergänzt, die den Aussenraum rahmen. Trotz eines Höhenunterschieds von 1,5 Metern verbindet die klassische Dreiteilung von Sockel, Mittelteil und Titanzinkdach die Baukörper harmonisch. Die Baufreigabe erfolgte im September 2025, der Baustart im Dezember 2025. Aktuell befindet sich das Projekt in der Umsetzungsphase.
- Typologie:
- Wohnungsbau
- Aufgabe:
- Neubau
- SIA-Phasen:
- 21–53
- Status:
- In Bau
- Ort:
- Adliswil (CH)
- Jahr:
- 2022
- Nutzfläche:
- 575 m2
- Baukosten:
- 3'050'000 CHF
- Auftraggebende:
- Privat
- Planerteam:
- Reto Hungerbühler Bauleitung (Baumanager)
UBM Ingenieure (Bauingenieurwesen)
Berger Gartenbau (Landschaftsarchitektur)
Junit (HLKS-Planung)
Maneth Stiefel Elektroplanung (Elektroplanung)
Wichser Akustik & Bauphysik (Bauphysik) - Mitarbeitende:
- Hannes Reichel, Christiane Reichel, Katharina Halkenhäusser, Wanling Xu, Irma Abdagic